Sesc Limeira
Limeira, SP | 2017
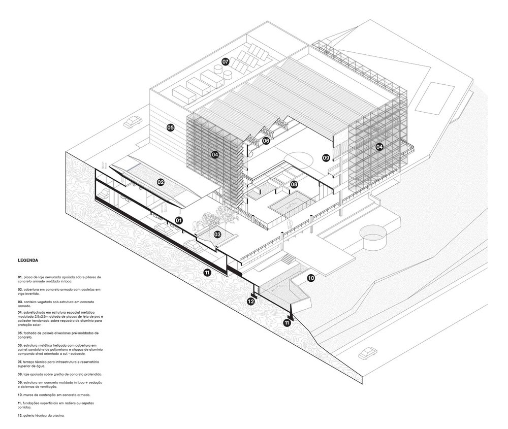
Concentrando o programa de atividades em dois blocos que abrigam os núcleos sociocultural e esportivo - respectivamente implantados nas extremidades sul e norte do sítio - a proposta para o sesc limeira se caracteriza pela criação da “praça do sesc”, uma esplanada intermediária de 2.200m2 de área dedicada ao ócio, lazer, esporte e tantas atividades quanto seus frequentadores sejam capazes imaginar.
Além de operar como uma plataforma de conexão entre os blocos sociocultural e esportivo, a praça do sesc é conformada em sua face leste pelos ambientes dedicados à oficinas e restaurante, separados entre si por escadas e rampas que estabelecem a conexão do complexo com a rua elevada que se desenvolve ao longo do perímetro leste do sítio. Implantada em paralelo às curvas de nível, a praça se abre para o sol poente permitindo uma relação direta entre seus frequentadores e o horizonte de limeira.
Além de operar como uma plataforma de conexão entre os blocos sociocultural e esportivo, a praça do sesc é conformada em sua face leste pelos ambientes dedicados à oficinas e restaurante, separados entre si por escadas e rampas que estabelecem a conexão do complexo com a rua elevada que se desenvolve ao longo do perímetro leste do sítio. Implantada em paralelo às curvas de nível, a praça se abre para o sol poente permitindo uma relação direta entre seus frequentadores e o horizonte de limeira.
Área:
20.000 m²
Arquitetura:
Matéria Base (fernando minto, thomas burtscher);
gru.a (caio calafate, pedro varella, sergio garcia-gasco, andré cavendish, júlia carreiro);
estúdio chão (adriano mendonça, antonio pedro coutinho)
Estrutural:
Cerne Engenharia
Prêmio finalista:
Menção honrosa
20.000 m²
Arquitetura:
Matéria Base (fernando minto, thomas burtscher);
gru.a (caio calafate, pedro varella, sergio garcia-gasco, andré cavendish, júlia carreiro);
estúdio chão (adriano mendonça, antonio pedro coutinho)
Estrutural:
Cerne Engenharia
Prêmio finalista:
Menção honrosa
TAGS: concurso; institucional;
