Residência Galdinópolis
Galdinópolis, RJ | 2021

Acomodada na topografia deste pequeno paraíso, com orientação principal para o nordeste, esta casa será o habitáculo dos desejos que foram para nós relatados em nossas conversas.
Este caderno contém os elementos de nosso estudo preliminar que deverá ser minuciosamente apreciado por vocês para que possamos alinhar expectativas.
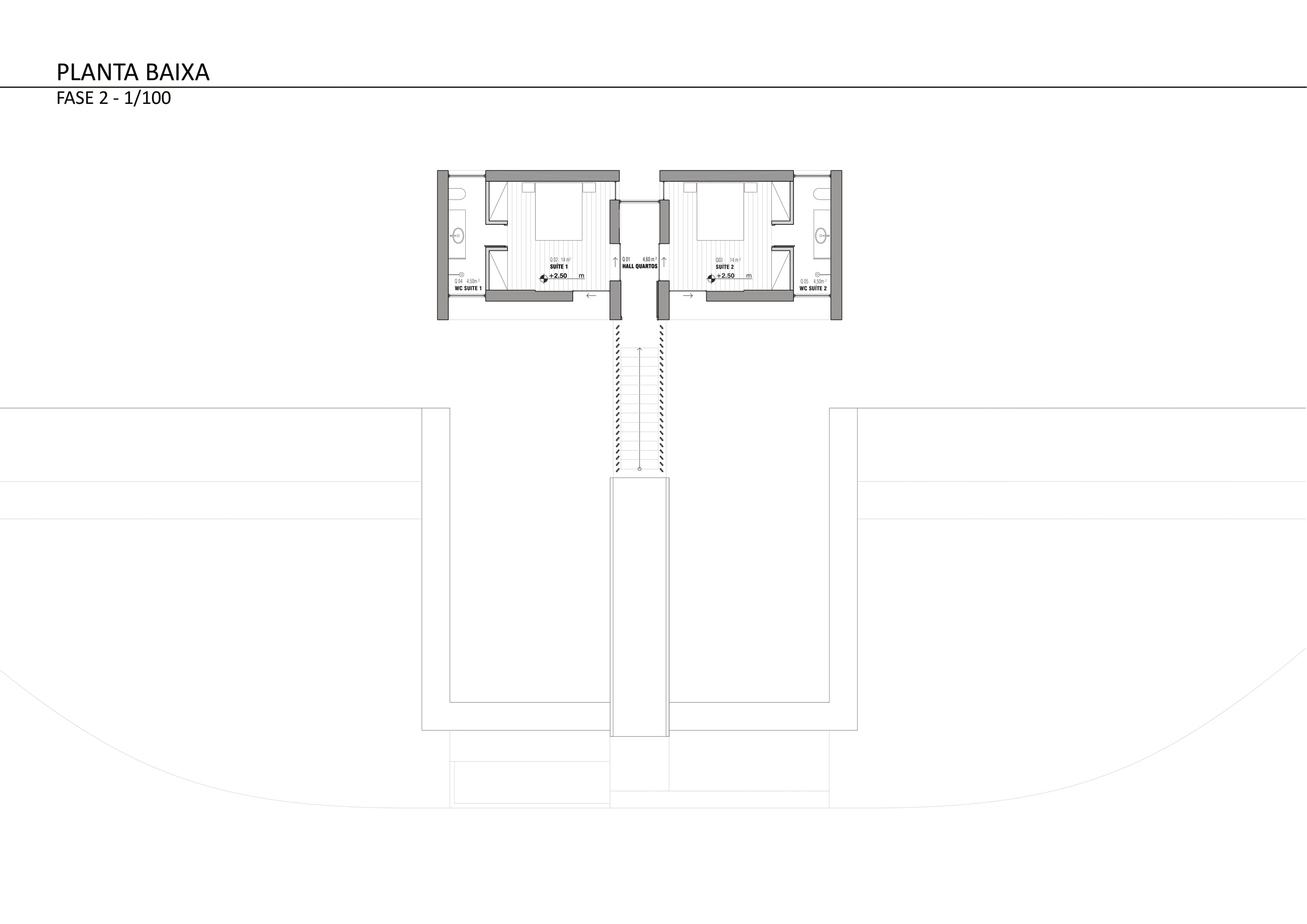
Tentamos, aqui, acolher as necessidades de uma casa faseada, cuja etapa inicial já poderá acomodá-los nas necessidades mínimas, mas que, com a segunda etapa concluída, responderá totalmente às demandas.
Pensamos, aqui, numa casa que pudesse responder aos anseios de vocês, tanto plásticos, como programáticos. Tanto no conforto dos materiais, como na versatilidade do uso. Gostaríamos de salientar que, mais do que isso, acreditamos que a energia depositada em nossos estudos serão transferidas com carinho no dia-a-dia renovador e cheio de vigor que esta vida no campo poderá lhes proporcionar.
Este caderno contém os elementos de nosso estudo preliminar que deverá ser minuciosamente apreciado por vocês para que possamos alinhar expectativas.
Tentamos, aqui, acolher as necessidades de uma casa faseada, cuja etapa inicial já poderá acomodá-los nas necessidades mínimas, mas que, com a segunda etapa concluída, responderá totalmente às demandas.
Pensamos, aqui, numa casa que pudesse responder aos anseios de vocês, tanto plásticos, como programáticos. Tanto no conforto dos materiais, como na versatilidade do uso. Gostaríamos de salientar que, mais do que isso, acreditamos que a energia depositada em nossos estudos serão transferidas com carinho no dia-a-dia renovador e cheio de vigor que esta vida no campo poderá lhes proporcionar.
Área:
350m²
Arquitetura:
Matéria Base (Fernando Minto, Fernando Bonini)
Estrutural:
CERNE Engenharia - Geraldo Filizola
350m²
Arquitetura:
Matéria Base (Fernando Minto, Fernando Bonini)
Estrutural:
CERNE Engenharia - Geraldo Filizola



















TAGS: residencial; taipa de pilão; teto verde; madeira;