Pindorama Tiny Houses
Nova Friburgo, RJ  |  2021

O Instituto de Permacultura “Pindorama” contratou o escritório com uma demanda muito específica: Projetar duas unidades habitáveis, seguindo o padrão das “Tiny houses”, que aliasse ao mesmo tempo funcionalidade no uso dos espaços e apropriação do maior número possível de técnicas ou tecnologias de baixo impacto (econômico e ambiental).
O desafio entrou pela porta do Matéria Base como desafio duplo pois a construção destas unidades deveria servir como suporte para a gravação de um curso de bio-construção que será disponibilizado pelo instituto. Foram pensadas duas unidades com partidos e apropriações técnicas distintas.
A primeira, batizada de “Chronos”, é uma unidade que faz uso de materiais de fácil acesso em lojas de material de construção presentes nas esquinas de qualquer cidade brasileira.Para esta unidade, foram utilizados: Painéis pré-fabricados de alvenaria armada, cascajes (painel curvo de argamassa armada), abóbada com tijolo cerâmico de oito furos, paredes estruturais de BTC (Bloco de Terra Comprimido), Peças de madeira laminada pregada - MLP, tramas simples de madeira para as estruturas (vigas vagonadas em MLP), Teto verde e vedações em chapas de madeira.
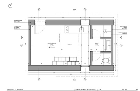
Já a segunda unidade, chamada de “Kayrós”, apropria-se de materiais não industrializados e processados na própria obra. Nela, utilizamos paredes estruturais de tapa de pilão, abobadilhas de adobe, paredes de pau-a-pique, abóbada de adobe, estrutura de cobertura em bambú, entre outras.
	O desafio entrou pela porta do Matéria Base como desafio duplo pois a construção destas unidades deveria servir como suporte para a gravação de um curso de bio-construção que será disponibilizado pelo instituto. Foram pensadas duas unidades com partidos e apropriações técnicas distintas.
A primeira, batizada de “Chronos”, é uma unidade que faz uso de materiais de fácil acesso em lojas de material de construção presentes nas esquinas de qualquer cidade brasileira.Para esta unidade, foram utilizados: Painéis pré-fabricados de alvenaria armada, cascajes (painel curvo de argamassa armada), abóbada com tijolo cerâmico de oito furos, paredes estruturais de BTC (Bloco de Terra Comprimido), Peças de madeira laminada pregada - MLP, tramas simples de madeira para as estruturas (vigas vagonadas em MLP), Teto verde e vedações em chapas de madeira.
Já a segunda unidade, chamada de “Kayrós”, apropria-se de materiais não industrializados e processados na própria obra. Nela, utilizamos paredes estruturais de tapa de pilão, abobadilhas de adobe, paredes de pau-a-pique, abóbada de adobe, estrutura de cobertura em bambú, entre outras.
Data da construção:
2021/ atual
Área:
casa kayrós: 24m²
Arquitetura:
Materia Base (Fernando Minto,
Igor Bahiense, Lígia Ferreira)+
Pindorama
Execução:
Pindorama
Estrutural:
Ramon Ayoroa
2021/ atual
Área:
casa kayrós: 24m²
Arquitetura:
Materia Base (Fernando Minto,
Igor Bahiense, Lígia Ferreira)+
Pindorama
Execução:
Pindorama
Estrutural:
Ramon Ayoroa
 
 
 
 
 
 
 
 
 
 
 
 
 
 
 
 
 
 
 
 
 
 
 
 
 
 
 
 
 
 
 
 
 
 
TAGS: residencial; abóboda; cascaje; alvenaria armada; teto verde; BTC; madeira; 
