i Hotel
Piracicaba, SP | 2008

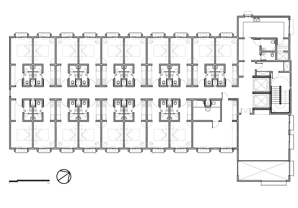
O edifício é composto por três volumes. O maior sendo o bloco de apartamentos, formado por seis pavimentos-tipo, cada qual com 18 suítes idênticas (a 19ª dupla de acesso universal), totalizando 114 unidades. O segundo bloco formado pela sobreposição em camadas das demais funções de apoio: recepção, administração, salão-restaurante e áreas molhadas. Na intersecção destes dois blocos, um terceiro volume vertical faz a conexão física entre os diversos usos, através da caixa de escada e torre de elevadores.
O nível térreo é dedicado ao estacionamento, com planta livre possibilitada pelo uso de pilares-parede alocados em grade modular às vagas. Posta na esquina da quadra, a entrada principal é o ponto focal do edifício.
A implantação é feita em corte-aterro minimizando a movimentação de terra. A parte baixa do terreno original é dedicada à área técnica, com acesso de serviço e previsão de cisternas para água pluvial e futura ETE. A cobertura em laje impermeabilizada é totalmente tomada pelas placas de aquecimento solar e torre dos reservatórios.
Sustentabilidade: prioridade para soluções de bom senso, em consonância com os desafios ambientais, qualificando o empreendimento a financiamentos “verdes”. Ou seja: gestão inteligente das águas; eficiência energética por meio de estratégias ativas e passivas; materiais de alto conteúdo reciclado e produção e extração regional; sistema construtivo modular, menor geração de resíduos; instalações prediais racionalizadas de fácil manutenção.
A implantação é feita em corte-aterro minimizando a movimentação de terra. A parte baixa do terreno original é dedicada à área técnica, com acesso de serviço e previsão de cisternas para água pluvial e futura ETE. A cobertura em laje impermeabilizada é totalmente tomada pelas placas de aquecimento solar e torre dos reservatórios.
Sustentabilidade: prioridade para soluções de bom senso, em consonância com os desafios ambientais, qualificando o empreendimento a financiamentos “verdes”. Ou seja: gestão inteligente das águas; eficiência energética por meio de estratégias ativas e passivas; materiais de alto conteúdo reciclado e produção e extração regional; sistema construtivo modular, menor geração de resíduos; instalações prediais racionalizadas de fácil manutenção.
Data da construção:
2011/ 12
Área:
construída: 3.447,15 m²
terreno: 1.525,43 m²
Arquitetura:
Matéria Base
(Fernando Minto + Thomas Burtscher)
Estrutural:
Salvador Marth
Execução:
Ferezini Engenharia
Instalações:
Antonio Carlos Silvello
Fotografias:
Paulo Munhoz + Acervo próprio
1° empreendimento financiado pelo programa DesenvolveSP, via BNDES/Copa2014.
2011/ 12
Área:
construída: 3.447,15 m²
terreno: 1.525,43 m²
Arquitetura:
Matéria Base
(Fernando Minto + Thomas Burtscher)
Estrutural:
Salvador Marth
Execução:
Ferezini Engenharia
Instalações:
Antonio Carlos Silvello
Fotografias:
Paulo Munhoz + Acervo próprio
1° empreendimento financiado pelo programa DesenvolveSP, via BNDES/Copa2014.
TAGS: comercial; alvenaria estrutural;
